Beach Hotel Chilak, Kaspisches Meer, Iran
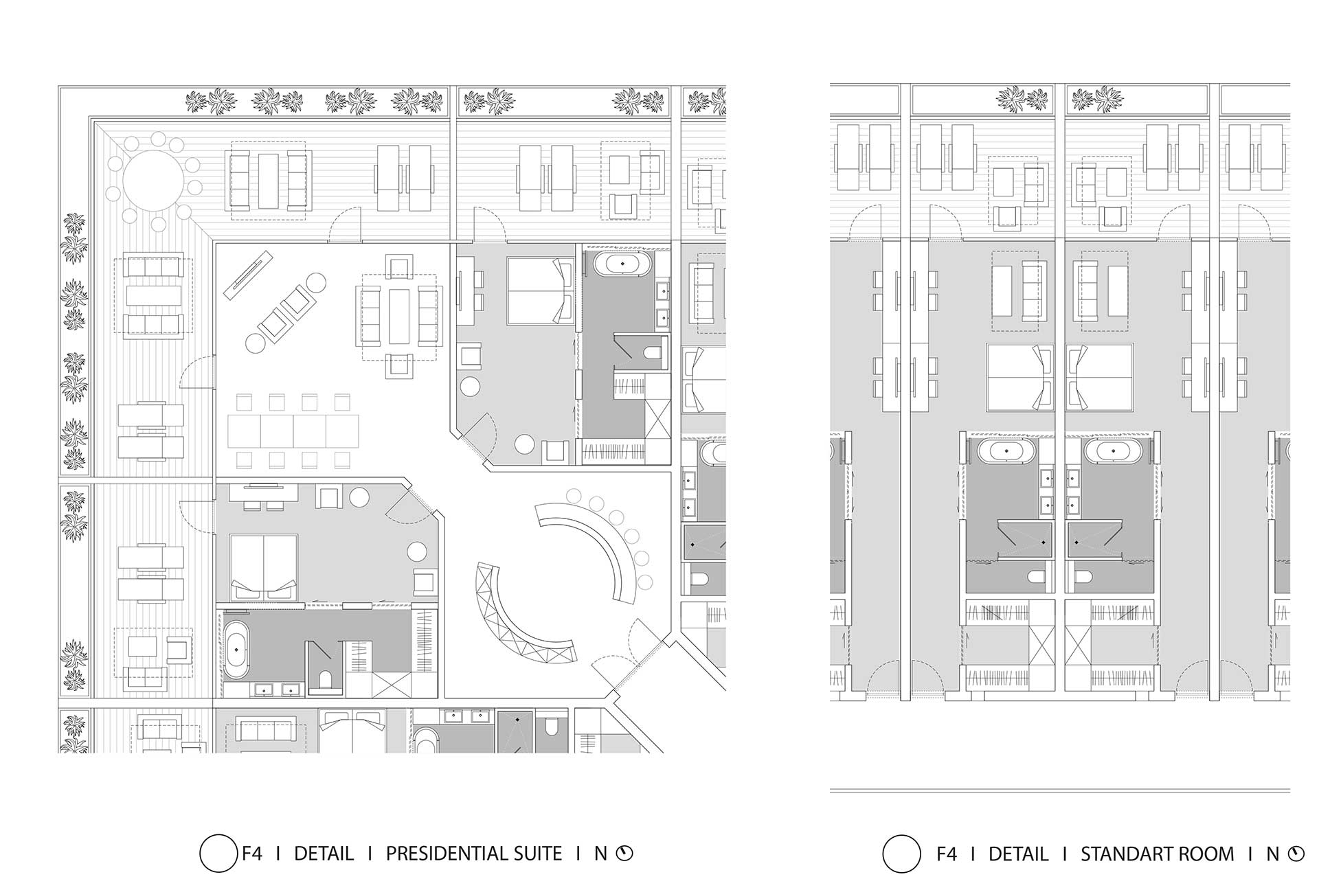
Beach Hotel Chilak sprengt Konventionen, in baulicher und konzeptioneller Hinsicht. Ausgelegt darauf, eine ganze Region wirtschaftlich zu beflügeln, befindet sich in einem einzigen Komplex ein Hotel der 7 * Kategorie, ein State-of the Art Convention Center und eine Mall mit etwa 30.000 m2 Shopping Möglichkeiten. Das Gebäude ist pyramidenförmig gebaut und bietet Platz für etwa 472 Suiten und Präsidenten Suiten und die größte, pyramidenförmig gebauten Lobby im Mittleren Osten. Ein reichhaltiges Angebot an Sport- und Erholungsmöglichkeiten runden mit den „Gardens of Chilak“, eine Oasenlandschaft im Außenraum, das Angebot ab.
Chilak am Kaspischen Meer, Iran







